随着现代工业的飞速发展,实验、研究以及生产的环境要求越来越高,各种不同用途,不同工艺的洁净厂房在各个电子工业园区中落户,本文以某半导体电子工业生产厂房为例,浅谈半导体厂房洁净室的空调系统设计。
1 概述
在日常生活及工业生产中,空调是比较常见的设备,由于现代化的科学实验和生产活动等对空气的洁净度有着不同的要求,为了给工艺生产提供稳定可靠的生产环境,保证所生产工艺产品的质量、产品的可靠性及较高的成品率,必须消除洁净室内外的各种热湿干扰以及尘埃污染。最常用的方法是向工艺生产各区域输入一定量经过处理的空气,从而将洁净室内的空气微尘粒子、有害气体、气态污染物等污染物部分或全部排除并将洁净室内温湿度、洁净度、气流分布、气流速度、室内压力等参数控制在某一需求范围内。
2 工程概况
本工程主要位于上海浦东新区某半导体产业园区,生产厂房总建筑面积 37497. 91 平方米,3 层丙类多层厂房, 建筑高度18. 80米,功能布局为丙类生产车间及生产辅房。
3 洁净室空调系统设计
本工程空调设计主要包括区域一般空调通风、净化空调系统、防排烟系统、工艺排气系统等。 洁净室主要位于生产厂房的二层部分区域及三层实验室区域。洁净室空调系统的室外设计参数如下表所示:

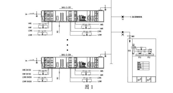
本工程洁净室的空调系统形式采用 FFU( Fan Filter Unit风机过滤单元) +DCC( Dry Cooling Coil 干冷却盘管) +MAU( Makeup Air Unit 集中新风机组) 的系统形式;气流组织形式为顶送下回,干盘管位于吊顶上方。洁净空调原理图如图 1 所示。

MAU机组设置在三层空调机房。MAU规格为95000CMH,4台( 三用一备)。新风空调机组由进风段、G4板式初效过滤段、F8袋式中效过滤段、预热盘管段(38 /32℃) 、预冷段(6/13℃) 、RO水喷淋水洗加湿段、低温冷冻水表冷段(6/13℃) 、再热盘管段(38 /32℃) 、风机段、化学过滤器段、化学过滤段、F9中效过滤段、H14高效过滤段、出风段以及相关的检修功能段组成。空调机组段位图如图 1 所示。
FFU 满布率: ISO3 级区域为 100% ;其余区域根据净化级别为25 ~ 75%。洁净区所用的新风( MAU) 系统,通过初、中效过滤、冷却除湿、过滤或加热、水洗加湿过滤以洁净之新风补充洁净室内工艺排风和维持正压为目的,以恒定的温度和湿度参数送风,从而保证室内个参数在设定值。
4 空调自控系统设计
在各系统运转数据的收集与分析上,,自动控制系统可以取代大量人力,还可以提供系统偏离设计值的早期预警,并将分析整理过的信息传送到工程师与主管作为系统管理的依据。
FFU( Fan Filter Unit风机过滤单元) +DCC( Dry Cooling Coil 干冷却盘管) +MAU( Makeup Air Unit 集中新风机组)空调组成形式主要通过MAU( Makeup Air Unit 集中新风机组) 来控制洁净室的湿度,通过DCC( Dry Cooling Coil 干冷却盘管) 来控制洁净室的温度。P&ID-新风机组控制原理图如图 2 所示, P&ID-洁净室控制原理图如图 3 所示,洁净室空调自动控制原理如下:


(1) MAU机组进出口处均安装电动密闭阀,电动密闭阀与MAU 送风机联动,开启时先开阀门再开风机,关闭时顺序相反。本项目业主要求在MAU 机组入口和出口处均安装电动密闭阀,笔者认为入口电动密闭阀的主要目的是关机后防止新风侵入损坏冷盘,出口处安装电动密闭阀的主要目的是防止某台机组不运行而其他机组运行时新风通过集管倒灌,故在设计中可只在 MAU 机组入口处安装电动密闭阀,出口处可用逆止阀取代电动密闭阀。
(2) MAU 机组各级过滤器设压差开关,报警值初中效:350Pa,中效:250Pa,高效:500Pa,化学过滤器段:200Pa,当压力超过设定值时报警,提示清洗或更换。笔者设计时,在MAU风机段也曾设置压差开关,主要目的是实现风机无风断电保护,业主要求取消该压差开关,原因是: 在工程一期的使用过程中,类似功能的压差开关在风机关闭时曾出现过误报警,且误报警在不同区域均有发生。在常规的设计中,无风断电保护均会配置,且有部分业主会指定配置无风断电保护,笔者认为该工程一期经常出现误报警是因为程序设计不合理,专业自 控厂家在程序设计过程中,不能孤立的判断压差开关的报警信号,应结合送风机的运行状态, 判定有效报警信号,当风机运行过程中出现报警信号时,报警视为有效,当风机关闭时报警信号视为无效信号。
(3) 温湿度控制:冬季:根据预热盘管后安装温湿度变送器控制预热盘管电动调节阀开度,保证预热后焓值在设定值;再经过水洗喷淋段( 水洗喷淋段自带控制) 进行水洗加湿,保证送风含湿量在设定值,再根据送风温度调节再热盘管电动调节阀开度,保证送风温度在设定值。 夏季: 根据预冷盘管后安装温湿度变送器控制预冷盘管电动调节阀开度,保证预冷后焓值在设定值;再经过水洗喷淋段( 水洗喷淋段自带控制) 进行水洗;据送风湿度控制再冷盘管电动调节阀开度,保证送风含湿量在设定值;再根据送风温度调节再热盘管电动调节阀开度,保证送风温度在设定值。过渡季节:根据预冷盘管后安装温湿度变送器控制预冷盘管电动调节阀开度,保证预冷后焓值在设定值;再经过水洗喷淋段( 水洗喷淋段自带控制) 进行水洗加湿,保证送风含湿量在设定值;再根据送风温度调节再热盘管电动调节阀开度,保证送风温度在设定值。洁净室设置温湿度变送器,监测室内温湿度,在各个季节根据洁净室度调节 DCC 盘管阀门开度,保证房间温度在设定值。
(4) 水洗喷淋控制( 喷淋室自带就地控制盘) : 喷淋用水箱设置电导率探头,当电导率超标时,报警,排水。水箱设液位报警,当低于下限时,报警,关闭排水阀。水箱超低液位联锁关闭喷淋循环泵。
(5) 送风集管设置压力传感器,监测送风压力,根据送风压力调节送风机变频运行。
(6) 洁净室设置压力变送器,至各洁净区送风支管安装电动调节阀,根据房间压力,调节各个送风支管电动调节阀开度保证房间压力在设定值。
(7) FFU 设置压差开关设置压差开关,压力高于设定值报警。
5 结语
本文结合某半导体厂房洁净室空调设计从设计的角度扼要介绍了FFU ( Fan Filter Unit 风机 过滤单元) + DCC ( DryCooling Coil 干冷却盘管) +MAU( Makeup Air Unit 集中新风机组) 的空调组成形式,阐述了该组成形式的主要控制原理,并分析比较了设计过程中出现的部分问题,具体控制功能的实现还需通过专业的自控厂家深化实现。