1 工程概况
该项目为某电子科研院所综合生产科研楼建设项目 , 工程建设地点位于江苏省无锡市, 工程占地面积2800㎡,建筑面积 7342.20 ㎡,地上 3 层,其中1 层为划片区、装片区、键合区、封装区等净化生产车间,2 层为检测区、剪边区等普通生产车间,3 层为科研办公区。本文主要阐述 1 层净化车间的空调系统设计。
1 层净化生产车间净化区域面积约 1280㎡,其中 5 级净化面积为 225㎡,6 级净化面积为 632㎡,7 级净化面积为 422㎡ ,主要为精密电子元器件生产、加工、封装车间。车间吊顶高度为 2.7 m。1 层左侧设置动力站房,为净化空调机房、水泵房及气体动力专业公用的设备用房。净化车间平面图如图 1。

2 工程设计参数
按工艺生产要求及工艺专业提供的设计条件,
并按照 GB50073—2001《洁净厂房设计规范》及 GB50472—2008《电子工业洁净厂房设计规范》 的要求,净化车间室内设计参数如表 1。

3 净化空调系统设计
3.1 冷热源
空调系统的冷源为 7 ℃/12 ℃冷水,由所区动力站冷水机组供给。热源为 50 ℃/45 ℃热水,由所区动力站的热回收机组和备用的空气源热泵机组提供。冬季加湿采用蒸汽加湿, 蒸汽从所区原有蒸汽管网引入本建筑动力站, 经减压后供空调加湿用。
3.2 空调系统设计
电子洁净厂房中,工艺设备散热量大,造成空调冷负荷较大,并且按照设计规范要求,洁净等级较高的区域或房间换气次数高达 50~60 次/h。为满足负荷和换气次数的要求,必须保证足够的送风量,而送风量的加大又使净化空调机组、风机及风管的尺寸偏大,加之吊顶上空间的限制,给设计和施工带来了很多困难。
新风处理机组(MAU)+ 风机过滤单元(FFU)+ 干盘管(DCC)的空调形式是电子净化厂房空调设计中经常采用的一种空调系统。在该系统中,MAU处理新风负荷,夏季冷却新风并除湿, 冬季加热新风并加湿;干盘管处理室内负荷,一般为全年供冷;FFU 用来循环空气从而达到洁净度要求的换气量。在该空调系统中,室内冷负荷由干盘管处理,循环空气量由 FFU 保证,空调机组只处理新风,从而大大减小了空调机组的处理风量,不仅减少了风系统运行能耗,也大大减少了空调机房面积、送回风管的尺寸及建筑空间。
在本工程中,厂房中工艺设备散热量较大,而湿负荷主要来自人员散湿。因此,本工程设计中,对于洁净等级为 5 级、6 级的净化区域,采用了上述新风处理机组(MAU)+ 风机过滤单元(FFU)+ 干盘管(DCC)的空调形式,新风处理机组设置在 1 层左侧动力站房内,干盘管(DCC)设置在回风夹道进入静压箱层的风口处, 并且在动力站房内设置一套板式换热器, 将所区动力站供给的 7 ℃ /12 ℃ 低温冷水转换为 14 ℃ /19 ℃的中温冷水供干盘管(DCC)使用。FFU 断面风速0.35 m/s,5 级正压控制在 25 Pa,6 级正压控制在20 Pa。
由于条件限制,净化区域内无法做高架地板或回风下夹层,因此,5 级、6 级净化区域回风均采用两侧下回风,回风经回风夹道回到吊顶上的静压层。
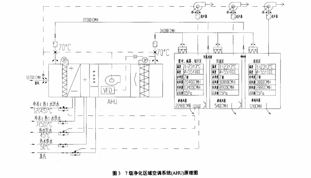
洁净等级为 7 级的净化区域,采用空气处理机组(AHU)+ 高效送风口(HEPA)空调形式, 在动力站房内设置一套组合式净化空调机组供 7 级净化区域使用,送回风形式采用顶送两侧下回风的形式。各系统空调原理图及送风平面图如图 2、3。


3.3 空气处理过程
净化空调机组设进风段、初效过滤段、表冷加热段、再热段、蒸汽加湿段、风机段、均流段、 中效过滤段、出风段。
新风进风段通过表冷器对空气进行降温除湿,通过加热盘管升温处理,在加湿段对空气进行加湿处理后经中效过滤送入室内。
送入房间的空气经初效、中效、高效三级过滤,初效过滤段主要针对≥5 μm 的粒子,计数效率≥80%;中效过滤段主要针对≥1 μm 的粒子,计数效率≥85%;高效过滤器主要针对≥0.3 μm 的粒子,DOP 效率≥99.97%。
3.4 空调系统自动控制
3.4.1 湿度控制
在典型房间内设置湿度传感器,并与空调机组加湿器的电动二通阀联锁,当湿度高于设定值时,关小电动二通阀,当湿度低于设定值时,开大电动二通阀。
3.4.2 温度控制
在典型房间内设置温度传感器,根据室内设定温度,对于 MAU 系统通过调节空调机组表冷盘管冷冻水回水管上的电动二通阀和干盘管用中温冷冻水主管道上的电动二通调节阀来控制室内温度;对于AHU 系统通过调节空调机组表冷盘管冷冻水回水管上的电动二通阀来控制室内温度。
3.4.3 压力控制
以室内压力偏差信号来控制新风电动阀的开度和新风空调器的变频装置,实现室内正压控制。
4 结语
电子洁净厂房由于工艺生产的要求,多呈现出空间大、跨度大、设备散热量大、洁净级别高、送风量大等特点, 并且有些工艺设备会产生热排风、酸碱排风或有机排风等特殊排风, 上述特点给电子洁净厂房的
空调系统设计带来一定困难。例如:在负荷计算中,工艺设备散热量大使得空调冷负荷巨大, 甚至经常出现冬天仍需供冷的情况,但在多数情况下,甲方或工艺专业不能准确地提供各个工艺设备的散热量,从而造成负荷计算存在不准确之处,算得负荷偏大或偏小都会影响空调系统的设计,从而影响空调效果。这便要求空调设计人员认真学习电子工艺的生产流程, 努力搜集各个工艺设备的参数,才能使设计更为准确、合理; 再如:为消除室内余热或满足换气次数的要求,加之厂房空间大,使得空调系统送风量大,这就要求空调设计人员对空调机组、送风设备的选择及风管布置必须做到精确合理。
本工程设计中,对净化级别较高的区域采用MAU+FFU+DCC 的空调系统形式,使得空调风系统得到简化,但同时也带来不得不面对的新问题,需要工程施工、管理过程中尤为注意。
(1)由于采用了干盘管,所以需增加一套中温冷冻水系统, 14 ℃/19 ℃的中温冷冻水由 7 ℃ /12 ℃ 低温冷冻水经板式换热器转换而来,且干盘管数量多,并均位于净化区域吊顶上, 造成净化区域吊顶上水管管路复杂。中温冷冻水系统的施工、运行和管理需精确可靠方能达到空调设计效果,满足工艺要求。
(2)为避免干盘管产生冷凝水,需对中温冷冻水温度进行精确计算。理论上讲,只要干盘管空气侧的表面温度高于空气露点温度便不会产生冷凝水,但由于干盘管的换热过程的复杂性, 通过计算干盘管空气侧表面温度从而确定中温冷冻水温度的方法较为困难。
工程设计中,设计人员常采取保守方法,让中温冷冻水温度高于空气露点温度。
(3)FFU 的满布率和断面风速是保证净化区域气流组织和洁净度的重要保障,设计过程中, 选用 FFU的参数应符合规范要求和工程需要。
- 上一篇:电子化学材料厂房十级洁净实验室设计
- 下一篇:电子级磷酸洁净厂房净化车间空调设计