印制电路板(PCB)广泛应用于通讯电子、消费电子、计算机、汽车电子、国防及航空航天等领域,是现代电子信息产品不可或缺的电子元器件。 随着当前云技术、 5G网络建设、 大数据、人工智能、物联网等行业的快速发展,印制电路板需求越来越大,产品要求越来越高。 为满足市场的需求,新建、扩建印制电路板生产厂房越来越多。 PCB生产过程工艺复杂、 设备发热量大、环境要求高,致使空调能耗极高,空调系统全年能耗约占全厂总用量的30~40%, 因此暖通空调节能设计势在必行。
1 厂房暖通空调状况分析
PCB工艺流程复杂,生产过程工序较多,各工序中生产设备的发热量、废气排放量及环境需求均不相同,从而导致了暖通空调系统复杂,且运行能源消耗大的现象。表1是华东地区某大型PCB厂房空调参数及冷负荷的统计数据,从统计的数据可以看出,此类厂房空调能耗较大,生产区域单位面积平均冷负荷大于350 W/㎡。由此可见,暖通空调节能设计非常必要,见表1。

厂房暖通空调系统运行能耗主要受以下因素的影响:
(1)室内外环境温湿度,室内洁净度等;
(2)生产设备发热量、废气排放量;
(3)冷热源有效利用率;
(4)空调系统输送水/风量、阻力;
(5)暖通空调系统设备的运行效率。
由室外气候及生产工艺直接制约的因素,此次不做研讨。 本文重点从提高冷热源利用率、 降低空调系统输送能耗、提升空调设备运行效率等方面进行分析,以降低冷热源、空调系统的综合运行能耗。
2 冷热源系统的节能设计
2.1 冷热源的选用
(1)热源的选用应优先采用城市、区域供热或工厂余热。高度集中地热源能效高,便于管理,有利于环保,为国家能源政策所鼓励,使用费用相对较低;
(2)对于峰谷电价差异比较大的地区,利用低估电价时段蓄冷有显著经济效益时,可采用蓄冷系统供冷;
(3)冷源应首先考虑采用天然冷源,无条件采用天然冷源时,可采用人工冷源。
2.2 冷热源机房的设置
(1)当生产厂区多栋厂房距离较近时,应集中设置供冷、供热机房,以便于充分利用各厂房负荷的参数特性,减小冷热源设备的容量,管理集中、方便,可以提高能源的利用率。
(2)当生产厂区多栋厂房距离较远时,应分别独立设置供冷、供热机房,机房的位置尽可能靠近厂房,以缩短输送管路,减少输送能耗。
2.3 供冷、供热系统的节能设计
2.3.1 中、低温冷冻水的应用
基于PCB工厂冷源需求量大、应用场所多、冷冻水温度要求不同等特性,供冷宜采用中、低温冷冻水两套供应系统。中温冷冻水供回水温为13℃/18℃,用于工艺设备降温、干盘管及风机盘管制冷。低温冷冻水供回水温为7℃/12℃,用于组合式空调箱(MAU、AHU)降温除湿。冷水机出水温度提高1 ℃,机组COP提高约2~3%,相比传统的单一低温冷冻水供应系统,冷水机综合能耗降低约10%。
2.3.2 变流量水系统的应用
多栋厂房集中 设置的供冷、供热机房,宜采用二次泵变流量系统,二次泵应根据各厂房需求特性分别选用、控制。每栋厂房独立设置的供冷、供热机房,宜采用一次泵变流量系统。
2.3.3 冷却塔节能运行的应用
通过监测室外湿球温度,重置冷却水温度控制设定值,以此来调整冷却塔风扇运行数量、频率,避免冷却塔风扇过度运行产生的能源浪费。通常冷却水温度控制设定值比室外湿球温度高3 ℃。
2.3.4 机房群控的应用
充分利用机房群控的技术,通过监测供回水温度、流量及压力等参数,自动调节冷水机、水泵及冷却塔等设备运行负荷,以降低机房整体能耗。水泵运行频率宜通过监测最不利回路供回水压差进行控制。为了运行稳定,也可直接通过监测供回水主管压差进行控制。
2.3.5 自由冷却的应用
厂房生产设备发热量大,大部分空调需全年制冷, 且部分生产设备也需全年降温。 鉴于此,对于冬季环境温度较低的地区,应充利用天然冷源,可采用冷却塔直接制冷。从以往使用经验看,在华东地区,每年有三个月可使用自由冷却系统,节能效果显著。
2.3.6 热回收的应用
工厂压缩空气使用量大,且用量稳定,因此空压机热回收可作为稳定的热源使用。从以往使用数据看,空压机热回收量约占总用量的15%。
厂房冬季冷量需求较大,若不采用自由冷却的情况下,可利用冷水机全热回收。从以往应用案例看,在华东地区,冷水机与空压机热回收总量即可满足全厂冬季空调的使用。
2.4 冷热源系统设备的节能
冷水机的选型应结合工厂特性、市政能源状况, 以及环境气候特点综合评估后选用。印制线路板厂房多数情况会选用电动压缩式冷水机组,对于冷冻水用量需求较大的厂房,宜采用高效、环保的离心式冷水机组。考虑到厂房全年冷负荷需求量的变化,为保证供冷系统全年稳定、高效的运行,每个供冷机房宜设置一台变频冷水机组。 具备市政蒸汽供应的地区, 应采用市政蒸汽与水进行换热来制取热水,其中换热器的选用至关重要。结合以往应用案例看, 螺旋螺纹管式换热器具有传热系数高(7000~8000 W/m 2 . K)、换热效率高、耐高温高压、外形体积小等特点,非常适合应用于汽-水换热。
水泵作为空调水系统循环的动力源,对水系统的稳定运行起着至关重要的作用,但同时水泵也是其中主要的耗能设备。在空调水系统中,水泵约占整个水系统能耗的20%,因此水泵的节能设计非常重要。水泵选用参数要合理,并配置合适、高效的电机。水泵电机采用变频驱动,可根据系统负荷的变化,自动调节运行频率,以保证水泵有效、高效的运行。
3 空调系统及设备的节能设计
3.1 空调系统的节能设计
3.1.1 洁净室空调系统的合理选用
PCB厂房洁净室洁净度等级一般为N6、N7,其车间具有数量多、面积小、冷负荷大、新风需求量大等特点,并且应市场的发展,洁净室车间会随生产工艺的变化进行改造。基于此, 印制线路板厂房洁净室宜采用新风机组(MAU)+风机过滤单元(FFU)+干盘管(DC)的组合方式进行空气处理,相比一/二次回风空调系统,该空调系统具备空气循环耗能小、系统运行稳定、升级改造方便等特点。新风处理机组(MAU)风机采用变频驱动,风机频率根据室内压差自动调节。风机过滤单元(FFU)选用高效的直流电机,可根据高效过滤器的使用状况调节风机的运行速率,避免在系统投用初期,过风量运行造成不必要的能源浪费。干盘管(DC)采用13 ℃的中温冷冻水,降低了冷水机运行能耗。
在进行厂房工艺布局设计时,应尽可能将不同洁净度、不同温湿度要求的区域分隔开,分别设置单独的空调系统,独立控制。空调机房应尽可能靠近所使用的区域, 缩短风管长度, 减少输送阻力,节省运行成本。
3.1.2 恒温恒湿车间空调系统的优化
PCB厂房恒温恒湿车间具有设备发热量大、新风需求量大、室内湿负荷小等特点。对于温湿度控制精度较高的区域,可采用优化后的一次回风系统(图1),相比传统的一次回风系统, 组合式空调箱增加了冷却段、回风段。第一段冷却段采用7℃的低温冷冻水,其主要功能是降温除湿,控制室内湿度;第二段冷却段采用13℃的中温冷冻水,其主要功能是降温,控制室内温度。相比传统一次回风系统,避免了冷却除湿后的再热,消除了冷热抵消的能源浪费;尽量采用13 ℃中温冷冻水,提高冷水机的运行效率,降低冷水机的运行能耗如图1。

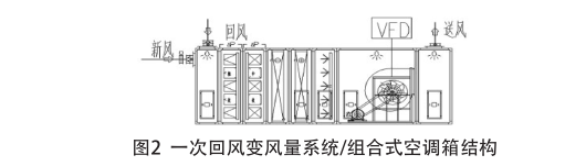
对于温湿度控制精度相对较低的区域,可采用一次回风变风量系统(图2)。新风电动调节阀的开度根据车间的压差进行控制,以保证补充适当的新风量,考虑到一般回风侧管路较长, 相对新风侧沿程阻力较大,所以回风侧不需设置电动调节阀。夏季工况下,室内湿度通过冷却段冷水阀的开度进行控制,室内温度通过风机运行频率进行控制。冬季工况下,风机可在较低频率下运行,室内温度通过冷却段、加热段的水阀开度进行控制,室内湿度通过加湿器开度进行控制。相比传统的一次回风系统,减少了冷热抵消的能源浪费,降低了空气输送的能耗。但风机运行频率较低时,送风量较小,送风相对室内温差较大,不适宜应用于温度控制精度较高的车间如图2。

3.1.3 普通加工车间环境微负压控制的应用
普通加工车间生产过程中会产生少量有害气体,生产设备废气排放量大,操作人员工作岗位固定,因此采用全新风空气处理机组进行岗位送风和环境补风。为了减少对周边生产车间的环境影响,该区域采用微负压控制,以避免有害气体对外扩散,同时减少从周边环境的取风量。废气处理系统与生产设备联控,风机采用变频驱动,通过监控废气处理系统管道的压力, 自动调节风机运行频率,合理控制生产设备的废气排放量。通过区域微负压控制,自动调节新风空调处理机组的运行频率,合理有效的进行岗位送风和环境补风,减少冷热源、风机的能耗,降低空调运行成本。
3.1.4 生产设备排气余热的回收利用
对于部分生产设备(烤箱、烘干设备等)产生的高温、低污染的废气,可采用热回收新风机
组,回收生产设备废气余热。对于部分无污染、与室内空气焓差小的工艺设备排气,可直接排至车间内,以降低环境补风量、减少新风处理能耗,对于温湿度要求高的车间,节能效果非常显著。
3.2 空调末端设备的节能
3.2.1 加湿器的选用
对于部分设备发热量大,湿度控制精度较低的恒温恒湿车间,在满足湿度控制要求的情况下,宜采用等焓加湿(湿膜加湿、高压微雾加湿等),充分利用水汽化吸热的物理特性,减少冷源的消耗。
3.2.2 风机的选用
风机的选用参数要合理,尽可能选用高效率的风机,马达与风机宜采用直连。受外部气候环境及厂房生产负荷的影响,空调系统时常不在设计工况下运行,风机设计参数与实际运行需求会存在差异。风机采用变频控制,通过监控风量或风压等变量, 自动调节风机运行转速, 以满足系统实际需要,避免了通过调节风阀产生的不必要能耗。
3.2.3 控制阀的选用
控制阀的选用型式、参数是否合理,对空调系统运行稳定性及能耗影响非常大。阀门的选用型式、参数应依据系统特性,详细计算、分析后确定。对于变流量水系统,空调末端控制水阀应采用二通调节阀,通常采用等百分比型调节阀。空调系统的风量调节阀,通常采用对开式多页调节阀。
4 总结
本文根据印制电路板厂房的特点,结合多年的项目设计与运营经验,对暖通空调节能设计进行了分析与总结,以便为同类厂房建设提供参考。本文所提及的暖通空调节能设计方案, 并非在所有同类厂房均适用,各项目应结合自身特点,综合评估后选用。
- 上一篇:生物医药洁净室净化空调设计方案
- 下一篇:中药颗粒剂净化车间洁净厂房设计