随着工业社会的发展,洁净空调应用于社会广泛领域,包括电子工业,航天工业,制药工业,医疗,纺织工业等等,而新风在洁净空调中扮演着重要角色在电子洁净厂房中,洁净等级基本涵盖了30万级到100级,甚至更高,因而要求空调送风换气次数从几十次到几百次不等,是一个能耗很高的行业。通过近几年具体设计中发现,新风集中预处理在节能、控制、管理等方面上具有许多优势本文将简要阐述电子洁净厂房中新风量的计算,新风集中预处理优势及其空气热湿处理和控制方案。
1.新风置计算
1.1在洁净空调中,新风对于生产安全,产品质量起着举足轻重的作用。由于新陈代谢的需要,人体需要不断吸入氧气,呼出二氧化碳,如果在没有新风的环境中工作会有缺氧的现象如:头晕、恶心、烦燥、工作效率低等。所以空调净化系统中满足人员卫生要求的新风量一般为不小于40m³/(h*人)
1.2洁净空间一般都伴有工艺需求的排风,为了平衡这部分排至室外的空气量,净化系统需要补偿相应的新风量
1.3为防止室外或相邻的其他用途房间的空气渗入空调净化车间,干扰其洁净度或温、湿度,这类应维持正压的空气量将由新风来补充,这部分新风量计算主要有缝隙法及换气次数法,这里不做具体介绍。
1.4满足相当于总风量
一定比例的新风量,根据经验,考虑到洁净空调系统中空调机组和送风管道内正压较高,沿程将有可能有较大的漏损,为了安全起见特别是在医药等行业,新风量的比例应满足非单向流洁净室总风量的10%—30%,单向流洁净室总风量的2%—4%。这时候如果洁净室人员少,工艺排风少,正压也足够,按比例计算的新风量大于系统的需求时,就应该增加洁净空调的排风量来作为应对措施。
1.5以下用一个图表来表示洁净空调系统中新风量的确定。

2.新风净化及热湿处理
2.1、对于洁净室来说,新风是空调系统中一个主要的污染源;不经过过滤的新风会使表冷器堵死,使表冷器的传热系数下降,而且有害的化学颗粒对表冷器具有腐蚀性,大量的细菌又在其附近繁殖,降低了表冷器及髙效空气过滤器的使用寿命。为了保证洁净室的洁净度要求,室外新风必须经过多级过滤后才能送往洁净室。
2.2、在洁净空调系统中,因为室外新风焓值与室内空气焓值往往差别很大新风的热湿负荷在净化空调系统中占有很大的比例。如果新风不经热湿处理直接送入洁净房间,是无法满足洁净房间的温湿度要求的。
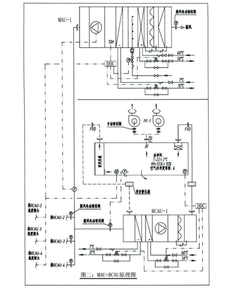
2.3一般情况下,大部分洁净空调系统均设计为经典的一次回风系统,室外新风与室内回风直接混合后再进行过滤及热湿处理,这种空调方式是最常见方式。在电子洁净厂房中,大部分房间的室内产湿量很小,而设备发热量很大,室内空气热湿比无穷大,在焓湿图中为一条竖直的线;因而从投资、管理、节能等方面考虑,建议采用新风集中预处理与循环空调机组相组合的方式(MAU+RCAU)在“MAU+RCAU”系统中,新风集中预处理空气流程为:新风入口—粗效过滤器—中效过滤器—加热器—加湿—表冷器—送风机—送风管—各循环空调机组(RCAU);循环空气处理机组空气流程为:新回风混合(新风接自MAU)—表冷器—加热器—送风机—中效过滤器—送风管—高效过滤器送风口—洁净区—百叶回风口—回风管—新回风混合;各功能段的具体布置详见图二,其空气热湿处理过程见图(一)。

3.“MAU+RGAU”系统的优势
3.1、在一些温湿度控制精度较髙的的洁净车间,每个车间需要独立设置空调机组,这些空调机组都需设置新风处理功能段等完整的功能段,这样意味着所有空调箱五脏倶全,如果厂房内洁净车间较多时,空调箱数量就很多,会造成空调机房偏大,投资增加,维护工作量加大等不利因素。如果采用新风集中处理,再分配给各个空调净化系统,这样虽然增加了一台新风机组(MAU),但是其他循环空调箱(RCAU)均减少了很多功能段,节省了设备投资也节省了空调机房面积及机房外墙新风百叶开口数量。
3.2、在冬季室外气温较低的北方地区新风往往要预热,不然与一次回风直接混合的时候很有可能产生冷凝水;洁净车间一般都有湿度要求,冬季处理过程往往需要加湿空气,因此白白加大了加湿负荷。
夏季新风含湿量高,温度也高与回风直接混合后,有可能需要多级多排的表冷器来处理,大大加大了空调机组表冷器负担。然而新风集中处理后再送入循环空调箱与回风混合,减少了循环空调箱的功能段及过滤器的更换频率,降低了循环空调箱的风机压头,避免了能源的浪费。
3.3、新风作为洁净室控制的重要污染源,集中预处理可以强化新风的过滤和便于管理,为洁净室运行提供更安全的保障。
3.4、采用“MAU+RCAU”方式中,新风处理到室内送风露点,以满足洁净室的湿度要求。处理后新风通过风管送至各循环空调箱,经与回风混合后再通过表冷或者加热处理来满足洁净室的温度要求。
这样使洁净空调系统的湿度和温度分别由新风处理机组和空调循环机组来负责,使温度和湿度控制具有独立性及可操作性,尤其是在洁净室内新风量变化时其优越性体现得更为明显。
4.“MAU+RCAU”系统的控制方案
4.1、新风机组(MAU)采用变频风机,由总送风管上的静压传感器来控制变频器。在接入循环机组(RCAU)的新风支管上均设置电动调节阀,由各洁净室的正压值来调节电动调节阀的开度,使洁净室的正压值不随生产设备的排风量的变化而变化,电动调节阀的开度变化引起总送风管上的静压变化,根据其设定值调节(MAU)的风机频率,来控制新风机组的总送风量;其原理见图二。

4.2、控制新风机组(MAU)送风状态点,使其与洁净房间的送风露点相同这样就可以保证净化车间的湿度要求。根据送风状态设定值来调节加湿器的电动执行机构和表冷器及加热器回水管上的电动二通阀的开度;露点温度“DPT”由检查室内湿度敏感元件“HE”连续整定
4.3、净化生产车间的温度是由循环机组(RCAU)来保证的,经新风处理机处理后的空气状态为洁净房间的送风露点,新回风混合点一定在该洁净房间的热湿比线上,根据室内温度来调节表冷器和加热器回水管上的电动二通阀的开度其原理见图二。
一般情况下,在电子洁净厂房中,大部分洁净室温湿度要求基本都相同而且也允许一定范围的波动,这些车间都可以使用“MAU+RCAU”系统。但在某些车间具有很大的室内产湿量,其热湿比线并不是一条竖直的直线,采用新风集中预处理系统就无法满足要求,应该考虑独立的空气处理方式;还有就是当RCAU系统的新风比均比较大的时候,使用“MAU+RCAU”系统也很难体现其优势。
5.结束语
在电子洁净厂房空调设计中,正确的新风量的计算,有效的过滤及合理的热湿处理方案是洁净车间能否成功的重要因素之一;不同建筑布局,不同工艺需求就应该要有不同的洁净空调方案;“MAU+RCAU”系统在节能,控制,管理方面有诸多优势,建议设计时优先考虑。