在双碳的大背景下,电动汽车对燃油车的替代在缓解空气污染和能源消耗问题中发挥了重要作用。兼具功能性和安全性的全固态电池在电动汽车的全面推广上发挥重要作用,正成为各大新能源企业和相关研发机构的主攻方向,随之而来的是相关动力电池制造厂房的大量布局。在动力电池生产过程中会产生大量清洗废水,同时可能伴随废气和废渣排放。本文以实际项目作为案例进行分析,针对三种设计方案进行对比探讨,以形成类似动力电池厂房的废水设计方案经验总结。
1.项目案例
该项目建设地点位于广东省某市,为改造项目,改造建筑面积 3749.29㎡。项目新建全固态电池生产线,技术路线可能为硫化物固态电池。主要建筑有主厂房(丙类)、化学品库(甲乙类)等。
动力电池生产常规工艺流程如下图 1 所示,主要废水排放环节集中在正负极匀浆区域的清洗间排水。该项目生产废水主要是清洗电解质和正负极罐体产生的清洗排水,分为正极废水和负极废水,废水总排放量为 3m³/d,废水组成成分主要为粘合剂和石墨碳粉等,因此需分类分质收集。电解质硫化物化学性能不稳定,在空气中容易发生反应生成硫化氢废气。因此,此类清洗废水一旦泄漏,将对地下水和土壤等带来严重影响。

分析动力电池生产制造企业主要污染物排放指标,废水总排口中总锌、总锰特征污染物浓度执行表 1《电池工业污染物排放标准》(GB30484-2013)中水污染物特别排放限值,其他污染物浓度,如 COD、氨氮、总磷、总有机碳等执行污水处理厂纳污标准和表 2《污水综合排放标准》(GB8978-1996)中的三级标准。动力电池生产企业主要废水排水量也可以参考表 3《电池工业污染物排放标准》(GB30484-2013)中锂电池生产废水基准排水量,制定相应的排水设计方案。
2.废水处理方案设计
2.1 “地沟 + 收集坑 + 潜污泵压力排”方式
项目初步设计时考虑一般生产废水的常规处置方案,采用室内地沟和集水坑收集,后经潜污泵加压管道排至室外。具体方案如下:电池正负极清洗间地面设置地沟接收清洗机排水,清洗机接管采用间接排水方式,即:需与地面预留一定空气间隙,地沟内废水排至房间内集水坑。由于清洗废水中含有动力电池电极制备过程中使用所残留的粘合剂,废水在管道和池体
内,易结成凝胶状物质造成排污泵管道堵塞,清洗间需考虑预沉处理。在集水坑内设置沉淀区,坑内设置爬梯定期进行人工清掏,在集水坑内清水区设置两台潜污泵,吸取上清液可避免管道堵塞,经管道压力排至室外收集桶分类收集,因清洗废水中含有一些有毒有害物质,最终需委外由专业人员处理。废水排水方案如图 2、图 3 所示。


本项目全固态电池采用硫化物工艺路线,在电解质清洗过程中可能会有硫化氢废气产生,而且此方案设置室内收集坑,需要增设潜污泵和压力排管道,工程量成本较大,压力输送管路路线较长,故而我们设计了第二种方案。
2.2 一体化固液分离收集提升设备
方案二采用一体化固液分离收集提升设备,该一体化设备采用全密封结构,全自动运行无异味挥发,集渣排渣完全自动化,无需人工清掏,节省人工费用。设备包含全自动固液分离装置和污水提升装置,经过处理的废水通过自带的污水提升设备提升至室外收集桶,可同时实现残渣收集,异味处理和废水提升,其设备组成及工作原理如图 4、图 5。


虽然一体化固液分离收集提升设备能满足动力电池厂房清洗间废水处理的功能性要求,但目前此类设备常被应用于有油水分离以及食物残渣收集处理需求的餐厅、厨房和饭店等场所,在清洗废水收集处理领域没有相关应用案例。此方案可咨询相关厂家出具定制化解决方案,以应用于此类清洗废水的收集处置,会有较为理想的效果。
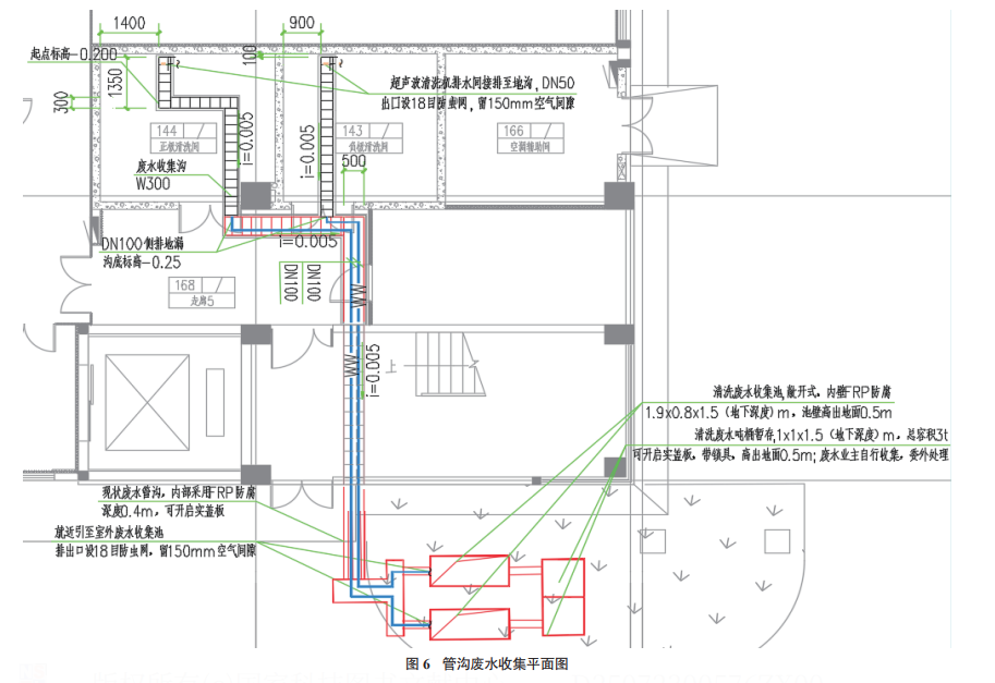
2.3 “管沟重力流收集”方式
废水收集方案从经济性和安全性出发,原则上应优先考虑重力流排放方式。本项目为改造项目,紧邻清洗间的室外原有废水沉淀池和提升井,室内原有现状废水管沟。第三种方案则考虑在清洗间内新增废水管沟,重力流方式收集清洗废水,同时设置盖板防止异味散逸,室外收集池内置吨桶收集,如下图6、图7。


参考表 3 锂电池生产废水基准排水量,结合业主提供的工艺排放指标,厂房室外设置有效容积不小于 3m³ 的废水收集池,池内放置两个吨桶存储清洗废水,当天生产作业结束委外由专门处理机构处理。室外收集池均为利旧设施,且清洗废水含有机物成分,此方案需考虑水池内壁防腐等措施的完善,避免废水渗漏对地下水造成污染。

2.4 辅助工程排水
除以上主要生产工艺过程的排水外,动力电池生产废水还包括动力辅助设备排水,主要为纯水制备过程产生的废水、废气洗涤塔的废水和机房冷凝水排水。
2.4.1 纯水系统排水
项目纯水制备过程中产生废水量约为:4m³/d,主要为纯水机房浓排水,水质较洁净,不需处理,就近接至室外污水井,最终进入市政污水管网。
2.4.2 机房冷凝水排水
动力电池厂房机房排水主要为空压机房和除湿机房的冷凝水排水,此类排水较清洁,且为间歇性排水,可就近排至室外雨水口,但需注意应采取间接排水方式,排水口末端预留150mm 空气间隙,并在排出口设置 18 目防虫网。
2.4.3 废气洗涤塔排水
本项目工艺中排放主要为有机废气,需要采用洗涤塔进行处理,水喷淋塔设备定时定期排水。废水产生量约为使用量的2/3,平均产生废水 1.8m³/d,蒸发损失 0.4m³/d,每天需补充水2.2m³/d,废水重力流经室外管廊并入清洗间清洗排水系统。
3.结论
动力电池生产厂房废水主要为清洗废水,通常分为正极和负极收集,设计时宜根据项目工艺充分参考行业规范《电池工业污染物排放标准》(GB30484-2013)和锂离子电池工厂设计标准(GB 51377-2019),选择合理处置方案。
本文对比三种收集处理方案,总结各方案优缺点及对动力电池厂房清洗废水收集处理的应用合理性。废水设计方案应综合考虑业主需求,生产工艺和建造成本,即:安全性,功能性以及经济性,最终选择最优方案。固态电池及相关动力电池项目生产工艺类似,废水的产生主要集中在正负极清洗废水,希望本文能对相关项目清洗废水的设计提供一些思路。