
-
葡萄汁饮料无菌冷灌装工艺及质量控制
葡萄富含糖、有机酸、矿物质、氨基酸以及多种维生素等,被誉为“水果皇后”葡萄汁作为一种营养丰富的饮料长期以来受到消费者的欢迎。随着PET瓶包装在世界范围内的蓬勃发展,果汁和软饮料的灌装正在由热灌装向无菌冷灌装
-
2023-09-20
查看详情

-
锂离子动力电池洁净厂房施工——不锈钢风管施工
1工程背景江苏地区某年产24GWh锂离子动力电池项目单体车间最大10万㎡,建筑总高度23.44m,地上两层,钢结构形式。锂电池生产车间的湿度一般控制在1%以下,接近绝对干燥的湿度环境是保证锂电池生产质量的前提条件。系统外
-
2023-09-12
查看详情

-
大型洁净厂房洁净施工
随着我国超大规模集成电路产业的发展,尤其是第五代TFT-LCD产业的发展,以及其它行业对空气净化要求的不断提高,洁净厂房的建设越来越多,净化级别不断提高,净化面积越来越太,而建设方对施工周期要求越来越短,合理的施工
-
2023-09-08
查看详情

-
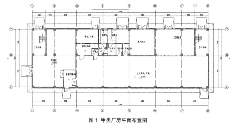
甲类厂房洁净区暖通设计
近年来,许多医药、农药行业,由于涉及有机溶剂的浸取车间、精制车间等,其中一些房间还有洁净要求。这些厂房既需要考虑厂房的洁净度,还要考虑防爆要求。如果处理不当,很容易发生危险。本文以安徽蚌埠某项目为例,根据现
-
2023-09-04
查看详情