全国统一服务热线
电子化学材料十级洁净实验室
项目名称:电子化学材料十级实验室
工程概况
本工程为为上海市某电子化学材料公司新建厂房中洁净实验室设计,总净化面积为210平方米,分为更衣室1、更衣室2、化验室1和化验室2.实验室面积虽然不大,但它是整个车间工艺流程的核心部分,净化实验室能否正常运行,直接影响到整个产品质量。
洁净室设计要求
按照FS-209E标准,本工程各房间的洁净等级分为为更衣室1—Class 4.5级(1000),更衣室2—Class 3.5级(100),化验室1—Class 4.5级(1000),化验室2—Class 2.5级(10)。实验室平面布置图见图1.


内装要求:洁净室内隔间吊顶及龙骨须为防腐蚀材料,所有水泥墙表面涂装耐腐蚀环氧树脂防止有可能被化学气体腐蚀,所有与回风相接触的机械元件都必须用不锈钢材质或者与之腐蚀性相当的材料。高效过滤器和超高效过滤器也要有耐腐蚀考虑。
空调要求:安装一套新风处理机组,处理的新风供给洁净室及安装在洁净室内的蒸发罩,新风回风混合后通过HEPA/ULPA/FFU(空气处理单元)送入洁净室。回风由空气集中处理机组或干盘管处理。每个房间的空气压力由集中处理单元或FFU控制,根据各房间洁净室及室内设备、家具的位置选择布置空气过滤器的数量和位置,室内温度及相对湿度必须可控。各房间均须设置紧急通风系统。各洁净室各项具体参数要求见表2.

按照各房间洁净度需求设置气闸、风淋室及传递箱。
洁净室设计说明
空调净化的设计是与工艺的布局、生产的流程密切结合的。不同类型、不同用途的厂房空调净化系统都各有特点,下面来介绍此项目的空调净化系统方案。
化验室1和化验室2都有温度和湿度控制要求,空调系统用的新风机组(MAU)和循环空调机组(RCU)的冷媒采用7~12℃的冷冻水,加热采用0.2Mpa饱和蒸汽,加湿采用纯水电极式加湿方式。
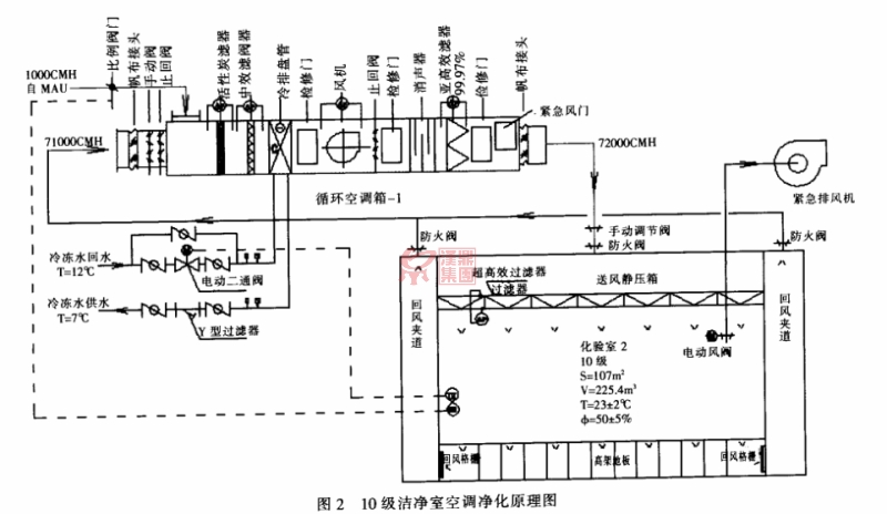
化验室2洁净等级为10级,采用新风机组(MAU)+循环空调机组(RCU)+超高效过滤器(ULPA)送风,气流经高架地板孔洞至回风夹道。ULPA满布率100%,化验室2对NH4+ 和SOx浓度有要求,需在循环机组(RCU)内增设化学过滤器。10级净化间的气流流程为:新回风混合→活性炭滤器→中效过滤器(95%)→表冷器→送风机→消声器→亚高效过滤器(99.97%)→送风静压箱→超高效过滤器(99.999995%)→洁净区→高架地板→回风夹道→回风管→新回风混合。为避免房间酸性气体一旦泄漏造成人员伤亡,设紧急排气风机。新风接至MAU-1新风机组。其原理图见图3.


新风机组(MAU)采用变频风机,其原理图见图4.

净化室内隔墙全部采用双面不锈钢岩棉彩钢板,液槽式吊顶龙骨及高架地板经喷涂防腐处理,混凝土楼板及墙面涂环氧树脂处理。MAU及RCU采用不锈钢结构,至RCU与HOOD的新风风管为不锈钢钢板,橡塑保温。回风风管采用玻璃钢结构,紧急排气风机为玻璃钢屋顶风机。
净化系统的空调自动控制
洁净室正压控制:新风机组(MAU)采用变频风机,由总送风管上的静压传感器来控制变频器。在接入每个循环机组(RCU)的新风管上设置电动调节阀,用于控制新风量及房间正压,由洁净室的正压值来调节电动调节阀的开度,使洁净室的正压值不随生产设备的排风量的变化而变化,电动调节阀的开度变化引起总送风管上的静压变化,根据其设定值调节MAU的风机频率,以达到控制目的。其原理图见图4.
洁净室温度控制:洁净室的温度由循环机组RCU来保证的,根据室内温度来调节表冷器回水管上的电动二通阀的开度。其原理图见图2、图3.
供冷系统由甲方提供,管路供至指定接点。






