全国统一服务热线
甲类化妆品原料厂房洁净室净化车间暖通设计
近年来,许多化妆品原料、医药、农药行业,由于涉及有机溶剂的浸取车间、精制车间等,其中一些房间还有洁净要求。这些厂房既需要考虑厂房的洁净度,还要考虑防爆要求。如果处理不当,很容易发生危险。
本文以安徽蚌埠某项目为例,根据现行的有关规范对项目的甲类厂房洁净区暖通系统进行分析和探讨(图1)。

1、设计计算参数
本项目位于安徽省蚌埠市,有关计算参数如表1和表2所示。

根据工艺要求,室内为恒温恒湿环境:夏季(26±1)℃,(60±10)%;冬季(20±1)℃,(60±10)%。
2、空调系统设计
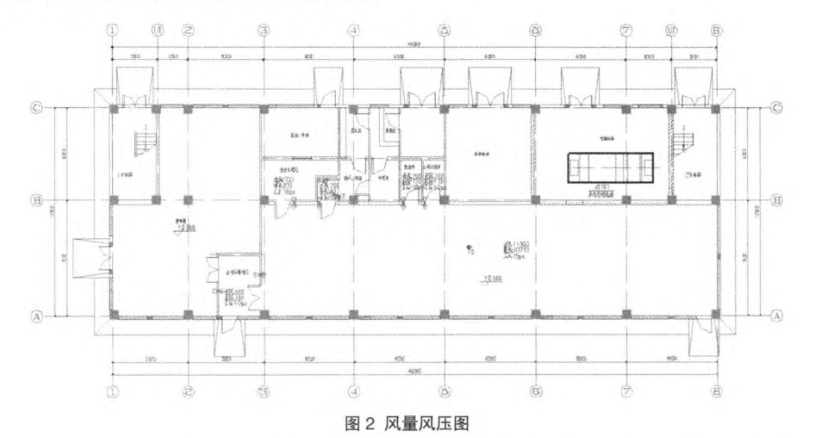
虽然本厂房洁净度要求不高,但考虑到为甲类厂房,主要危险介质为乙醇,事故通风换气次数为12次/h,并且由于是甲类防爆环境,应采用全新风系统,空调风不可回用,因此设置独立的排风系统。同时根据规范要求,不同空气洁净度等级的医药洁净室(区)之间以及医药洁净室(区)与非洁净室(区)之间的空气静压差不应小于5Pa,医药洁净室(区)与室外大气的静压差不应小于10Pa。不同净化级别的相邻房间,在其相邻隔断上设置微压差计,采用2000—60+型微压差计。具体的风量风压分布见图2。

根据工艺要求,本厂房洁净度要求不高,可不设高效过滤器,空调系统的气流组织形式为上送下排方式,部分区域吊顶抬高处采用侧送风。新风进入空调处理,经二级过滤后,通过风管送人净化区的双层百叶送风口,经由回风竖井,再经吊顶内排风干管集中,由管道风机箱送至厂房外排出。送风管道穿空调机房墙壁时安装70℃防火阀。计算送风量为13440m3/h,全新风。洁净区计算冷负荷为100kW,热负荷为250kW。冷源来自单冷式直联机,冷量为123kw;热源为厂区提供的0.4MPa的闪蒸蒸汽,热量为300kW。本厂房生产类别为甲类,净化空调机组及外机、管道风机箱需采用防爆电机。
3、空调控制系统设计
空调机组有两种运行工况,即正常运行和停机。空调机组及洁净区的管道风机箱的控制系统由净化空调安装单位负责安装调试及联动。
3.1正常运行时
风量控制:由设在送风总管上的风量传感器自动调节变频风机的工作频率,使送风量达到设计值,同时调节排风管道风机箱工作频率,使送排风达到并保持一定的比例。
温湿度控制:调节室外机、加热器和加湿器的阀门开度,实现送风恒温恒湿控制。
防火阀连锁控制:送风管路防火阀熔断关闭后,连锁对应系统送风机及排风的管道风机箱关闭。
设备启停控制:系统开启时,先启动排风管道风机箱,打开新风电动阀,再启动净化空调机组送风机;关闭时连锁程序相反。先启动冷热源再开启系统,关闭时则相反。
3.2其余控制要求
所有的数据均可上传至上位机,上位机对采集的数据具有储存、打印功能。上位机和现场控制器均可实现对空调系统的控制,现场控制器有优先权。
火灾报警时消防提供报警信号,自控执行停机程序。空调送风机与排风的管道风机箱采用变频控制,机组在下班时间低速运行,以保证净化房间正压。
4、通风系统设计
由于主要危险介质为乙醇,气体密度1.59kg/m3,比空气重,因此在厂房上下部均设置排风机。车间内洁净区排风由回风竖井经吊顶内排风干管集中,再由管道风机箱送至厂房外排出,计算排风量为12050m3/h。排风管道靠近风机处装止回阀及管道过滤器。管道风机箱应设自动和手动控制开关,手动控制开关应分别设在洁净室内、外,以便于操作。
车间内除洁净区外各房间采用边墙式防爆轴流风机,正常通风换气次数约8次/h,事故通风换气次数约12次/h,每个房间的轴流风机与该房间的可燃气体报警联锁,吊顶夹层的轴流风机与夹层的可燃气体报警联锁。补风则由门窗的缝隙自然渗入。事故风机开关在室内外便于操作处均要设置开关。此外,设计中还应注意以下内容:
(1)空调机房外门尺寸需满足空调机进出最大件尺寸的要求;另外空调机房内需预留一定的检修操作通道。
(2)吊装的风机等空调设备应设减振支吊架。
(3)防火阀的安装方向应正确,同时应事先检验其外观质量,动作灵活、可靠之后方可安装。 防火阀应单独配置支吊托架,且应与空调风机连锁,平时常开,火灾时熔断后连锁空调风机停转。
